top of page
Inicio
Proyectos
Concursos
Publicaciones
Equipo
Contacto
More
Use tab to navigate through the menu items.
< Atrás
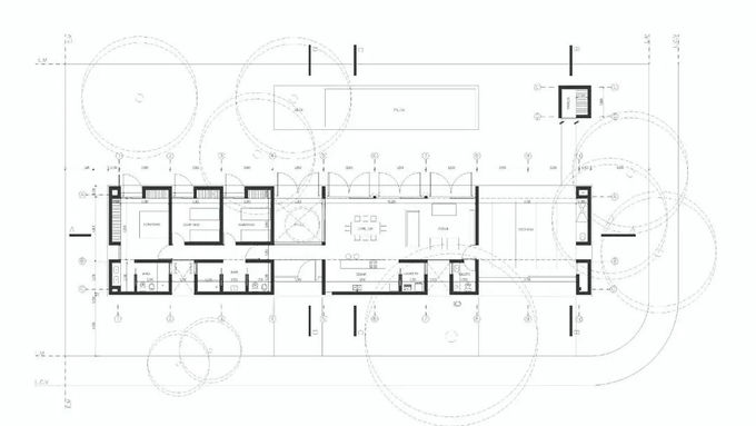
Casa AA
Proyecto, Vivienda
Autores :
STC Arquitectos, Julián Perdomo
Ubicación :
Alta Gracia, Córdoba, Argentina
Superfice M² :
Año :
2021
Estado :
En construcción
< Anterior
Siguiente >
bottom of page